Year 03
2009-10

Design        Construction        Services


Design/ Eco-resort at Gholwad, Dahanu





















































































         







       
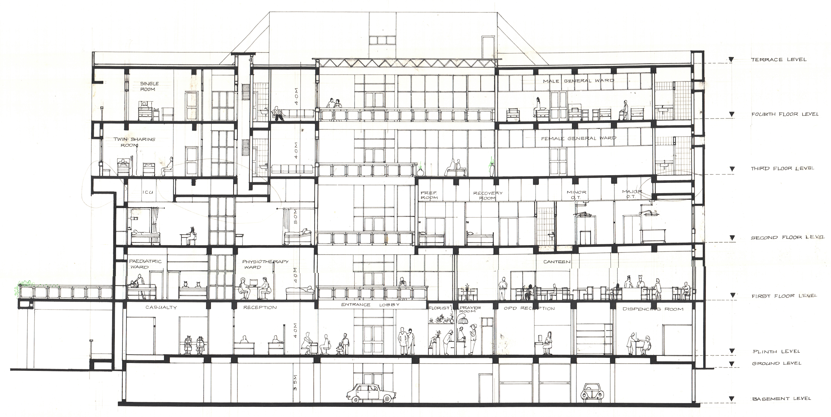
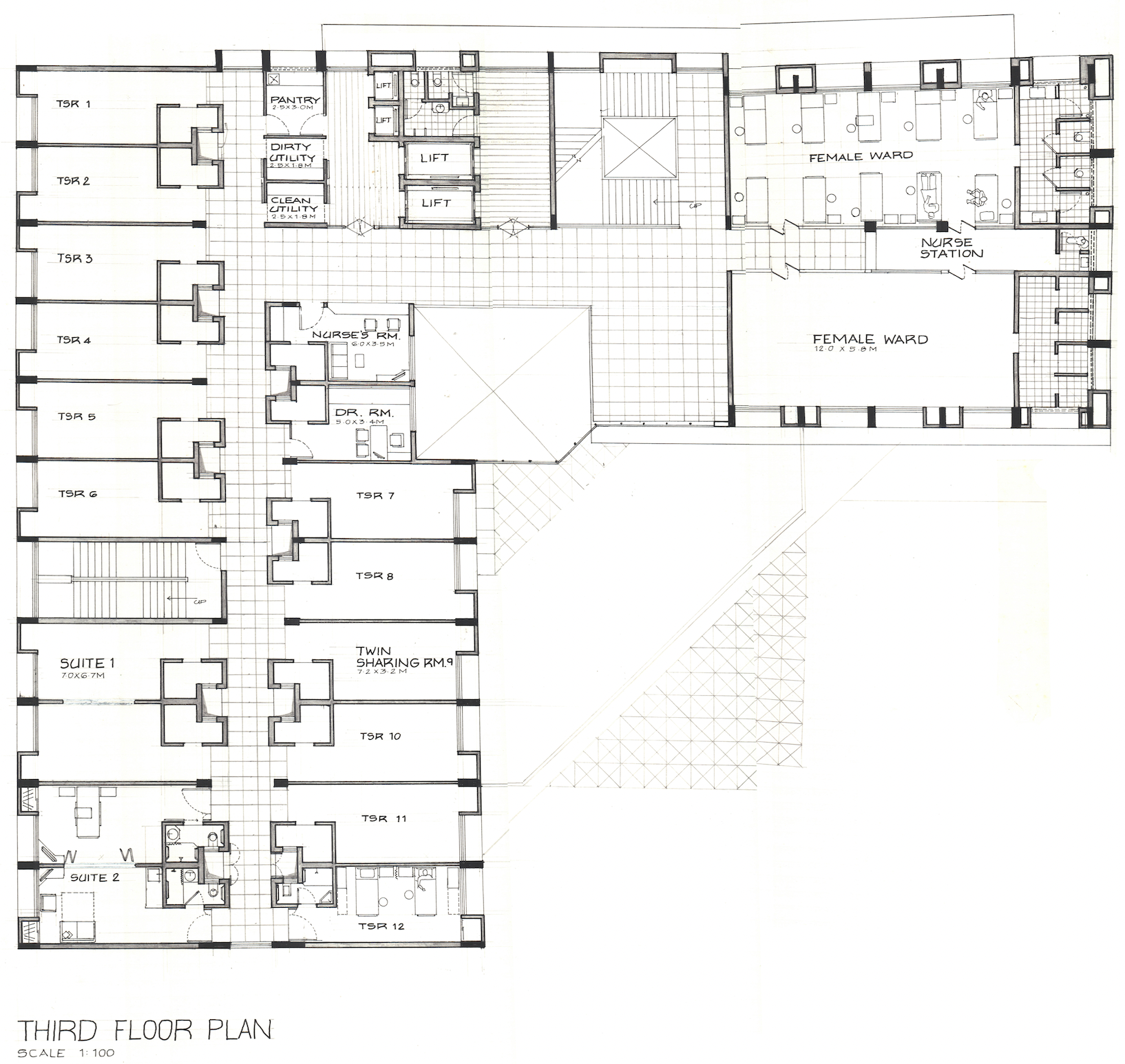
Design / Hospital at Vile Parle 











































Design / Old Age Home at Nerul